
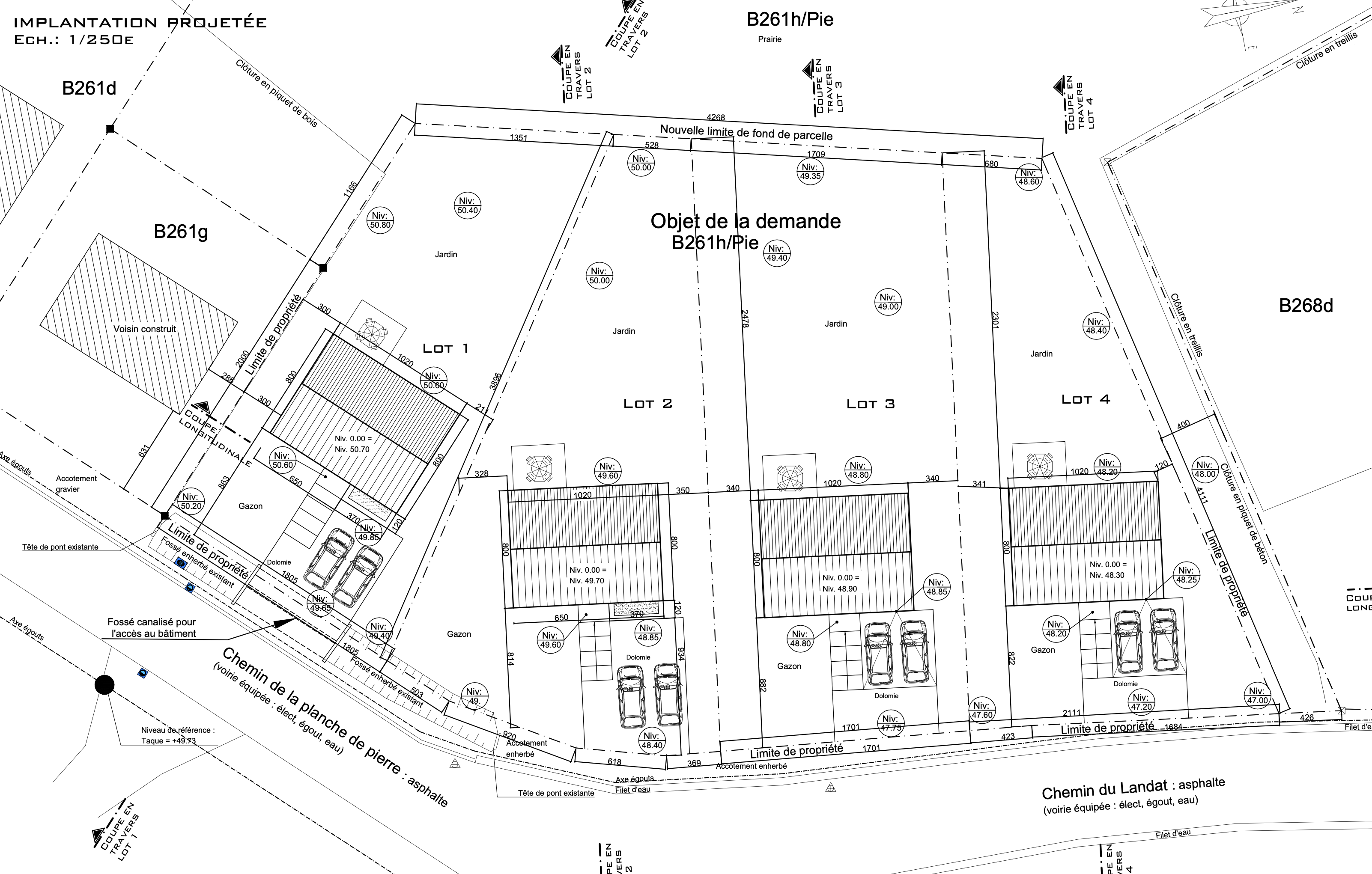
Alliance Partners vous propose un projet neuf de 4 villas 4 façades sur la commune de Mainvault dans l'arrondissement de Ath.
Le projet s'étant du Chemin de la Planche de Pierre au Chemin du Landat.
Ces 4 villas se composent comme suit :
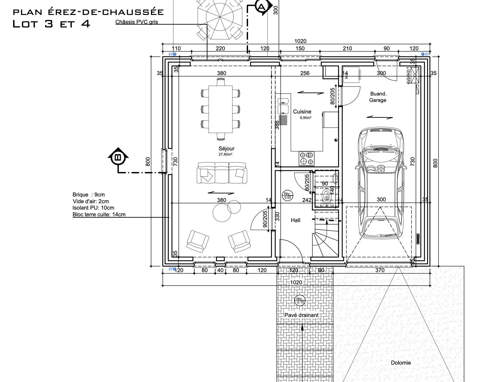
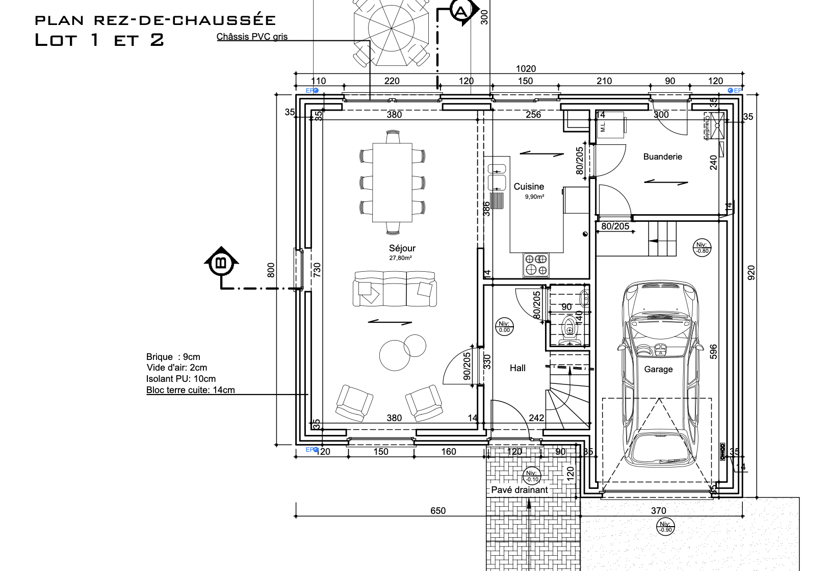
Rez-de-chaussée : Hall d'entrée, wc avec lave main, living avec cuisine ouverte (38 m2), buanderie (7,2m2), garage 1 voiture.
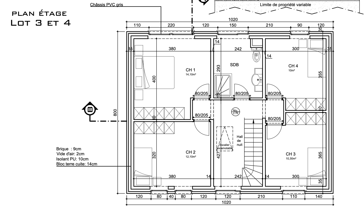
Étage 1 : Hall de nuit , chambre 1 (14,1 m2), chambre 2 (12,1 m2), chambre 3 (10,3 m2), chambre 4 (10 m2), salle de bain avec wc (7,1 m2).
Combles : Grenier aménageable (45 m2).
Techniques : Chauffage par pompe à chaleur (chauffage sol au rez-de-chaussée et radiateurs à l'étage), production d'eau chaude : pompe à chaleur avec boiler intégré, raccordement à l'égout, citerne d'eau de pluie avec pompe (5000 litres), ventilation Type C+.
Les finitions sont personnalisables : Carrelage, sanitaire, portes,...
Vente sous la loi Breyne (paiements échelonnés en fonction de l'avancement du chantier)
Les prix affichés ne comprennent pas la cuisine équipée et l'aménagement des abords.
Les prix sont compris hors frais d'achat, hors frais de raccordements et hors frais de géomètre
Lot 1 : 359.000 euros - Terrain de 5,33 ares - Largeur à rue : 18,05 m - Surface bâtie : 167,6 m2
Lot 2 : 369.000 euros - Terrain de 5,97 ares - Largeur à rue : 24,09 m - Surface bâtie : 167,6 m2
Lot 3 : 369.000 euros - Terrain de 6,88 ares - Largeur à rue : 17,01 m - Surface bâtie : 163,2 m2
Lot 4 : 349.000 euros - Terrain de 5,38 ares - Largeur à rue : 21,05 m - Surface bâtie : 163,2 m2
Visites et renseignements à l'agence.
Chemin de la Planche de Pierre - 7800 Ath
Référence | 6656226 |
---|---|
Catégorie | Villa |
Nombre de chambres | 4 |
Nombre de salles de bain | 1 |
Garage | Oui |
Surface habitable | 167 m² |
Année de construction | 2025 |
---|---|
Nombre de garage | 1 |
Type de toit | en pente |
Orientation du bâtiment (façade arrière) | ouest |
---|---|
Risque d'inondation (type innondation) | pas situé en zone inondable |
Buanderie | Oui |
---|---|
Grenier | Oui |
Chauffage (ind/coll) (type (ind/coll)) | Chauffage partiel au sol |
---|---|
Double vitrage | Oui |
Chauffage (type) | Chauffage partiel au sol |
Sdb (type) | douche |
Double vitrage (type) | isol. thermique |
Nbre de toilette(s) (nombre) | 2 |
---|---|
Nombre de sdd | 1 |
Chambre 1 (surface) | 14.1 m² |
Chambre 2 (surface) | 12.1 m² |
Chambre 3 (surface) | 10.3 m² |
Chambre 4 (surface) | 10 m² |
Largeur de façade | 10.2 |
Salle de séjour (surface) | 27 m² |
Cuisine (surface) | 9.9 m² |
Orientation de la terrasse 1 | ouest |
Égouts | Oui |
---|---|
Électricité | Oui |
Télévision par cable | Oui |
Câbles téléphoniques | Oui |
Eau | Oui |
Châssis (type) | pvc |
---|
Type de revêtement de sol | carrelages |
---|
Citerne d'eau | Oui |
---|
Magasins | Oui |
---|---|
Ecoles | Oui |
Transports en commun | Oui |
Autoroute | Oui |